欢迎光临 【 无锡市赛鼎过滤设备有限公司 】 官方网站!

咨询热线:15152238887 / 0510-83788027

盘式真空过滤机

    矿用重型盘式真空过滤机充分借鉴了国外同类产品的优点,针对金属矿物密度大,沉降快、含固体颗粒的滤液对过滤管冲击力强的特点,进行了整体性能和各部件之间可靠性的优化设计,具有结构坚固、滤盘运转平稳、自动变速强力搅拌、轴端密封可靠、陶瓷过滤管耐磨久用,滤扇强度高、孔率大,高强度滤布表面光滑、卸饼率高、使用寿命长,保证了金属矿物在固液分离中获得良好的脱水指标。
产品详情

产品介绍

       该过滤机是利用真空作为过滤动力,使浆液进行固液分离的设备。适用于矿山金属矿、非金属矿、环保污泥、水泥、建材等行业细颗粒物料的过滤脱水。
       矿用重型盘式真空过滤机充分借鉴了国外同类产品的优点,针对金属矿物密度大,沉降快、含固体颗粒的滤液对过滤管冲击力强的特点,进行了整体性能和各部件之间可靠性的优化设计,具有结构坚固、滤盘运转平稳、自动变速强力搅拌、轴端密封可靠、陶瓷过滤管耐磨久用,滤扇强度高、孔率大,高强度滤布表面光滑、卸饼率高、使用寿命长,保证了金属矿物在固液分离中获得良好的脱水指标。

技术特点

       一、滤扇:
       结合现有滤扇使用的一些缺陷,根据选矿行业的特殊性,我公司重新设计了专用滤扇。
       1. 表面光滑,脱水孔分布均匀,孔率合理,滤扇和筋条的边缘均呈圆角,不但提高了脱水率,同时也延长了滤布的使用寿命。
       2. 滤扇头有倒角,强度高,滤扇底部有加强筋,在装配、拆卸时不易损坏、断裂。
       3. 筋条走向与滤扇的中心线夹角合理,流体阻力小。滤扇的有效面积大,提高了过滤机的处理能力。
       4. 滤扇的壁厚比普通的增加了1/3,同时滤扇的重量也增加了1/3,平均寿命延长1.5-2倍。
       二、主轴与过滤管:
       1. 过滤管(包括轴头)采用高强度耐磨陶瓷复合钢管,管壁厚,不易磨损,提高寿命二到三倍以上。
       2. 滤液管与滤扇接口处取消法兰连接,而采用模具定位直接焊接,排除了原法兰连接处防漏胶皮垫圈老化的因素,消除了可能的漏气点。
       3. 每扇滤扇一块压板,压板两端分别用不锈钢螺栓和螺母压紧,不易生锈,便于换滤布、劳动强度大副减低。
       三、搅拌:
       针对铁矿粉的特殊性能,针对现在市场上过滤机容易漏和搅拌系统不耐用的特点,我公司采取以下搅拌装置,达到好的效果,并得到用户好评。
       1. 加永磁铁--防止矿粉进入搅拌套内。
       2. 采用水密封。
       3. 采用盘根密封。
       4. 加轴用骨架密封圈密封。
       5. 轴表面进行镀铬处理,不易生锈。
       四、槽体:
       搅拌轴下方槽体内采用刚玉高分子耐磨涂层,防止槽体钢板磨损。
       五、控制盘、摩擦片:
       采用特制耐磨硼磷铸铁,刚柔相济,密封效果好,使用寿命延长2-3倍。
       六、润滑和清洗:
       采用干油泵集中多点自动润滑,保证设备正常运行。滤布清洗采用自动清洗装置,保持了良好的脱水效果。
       七、电控:
       采用变频调速,以物料的浓度及流量调节,达到好的工作效果。

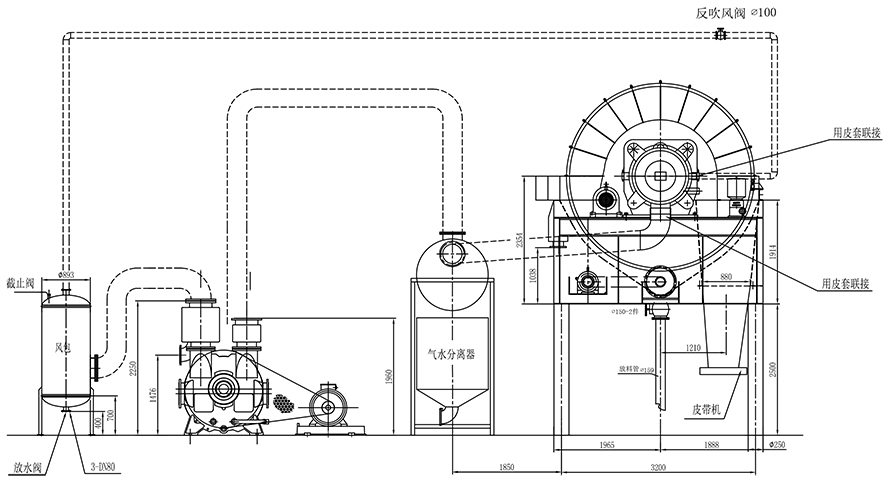
工艺布置图

       盘式真空过滤机工艺图(不含罗茨风机)

       技术参数
 
下一篇:没有了

Copyright ©2024 无锡市赛鼎过滤设备有限公司

备案号:苏ICP备18056331号 网站建设:无锡网科   苏公网安备32020602002524号